Parduodamas pastatas – profilaktoriumas GYDYMUI, SLAUGAI, GLOBOS NAMŲ VEIKLAI
- Kaunas
- Siūlau
- Patalpos verslui
Parduodamas pastatas – profilaktoriumas Kauno r. sav., Taurakiemio sen., Sietyno k., Pilėnų g. 11.
• Sietyno – gyvenvietė ribojasi su Tursono, Viršužiglio, Arlaviškių ir Gervėnupio gyvenvietėmis, aplinka yra labai graži ir rami, šalia miškingos teritorijos, teka Nemuno upė.
• Pastatas yra buvusioje sveikatingumo pastatų kompleksų teritorijoje. Visi teritorijoje buvę apleisti pastatai jau turi naujus savininkus ir yra renovuojami išlaikant jų pirminę paskirtį.
• Kaip gydymo paskirties objektui vieta patogi privažiavimo atžvilgiu. Gyvenvietė turi išvystytą infrastruktūrą, pagrindinės gatvės asfaltuotos, geras susisiekimas su Kauno miestu ir kitais rajonais. Nuo Kauno miesto ribos kaimas nutolęs apie 12 km.
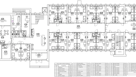
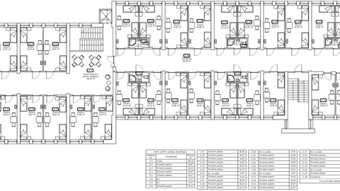
• 1981 m. statybos Pastatas – Profilaktoriumas: Pagrindinė naudojimo paskirtis – Gydymo. Bendras plotas 1512.92 kv. m.
• Žemės sklypas 0,5445 ha.: naudojimo būdas - Komercinės paskirties objektų teritorijos
- Užstatyta teritorija – 0.4964 ha, kitos žemės plotas - 0.0486 ha.
• Pastatas tinkamas palaikomojo gydymo, slaugos ir senelių globos namų veiklai.
• Rekonstrukcijos projekte suplanuota 100 lovų, administracinės, maitinimo ir kt. patalpos (žiūr. foto).
• Atlikti darbai:
- Stogo remontas (demontuotas iki perdengimo plokščių, apšiltintas 35 cm.)
- Fasado ir cokolio šiltinimas, apdaila.
- Nauji langai, palangės.
- Elektra, projektai ir įvedimas.
- Šildymo, katilinės projektai ir geoterminio šildymo įrengimas.
- Griovimo, šiukšlių išvežimo darbai, paruošiant patalpas vidaus apdailos darbams.
- Vanduo - reikalingas gręžinys.
- Kanalizacija miesto.
• Yra galimybė pirkti pastatą kartu su UAB „Sibela“, vykdančia veiklą nuo 2014 m.
Jei susidomėjote ir norite sužinoti daugiau informacijos, paskambinkite ar parašykite.
- Kaina: 680 000 €


